Правильно выполненная вентиляция загородного дома является гарантией чистоты воздуха, комфортной температуры и влажности, что в свою очередь благоприятно влияет на здоровье жильцов дома (многим владельцам хорошо знакома проблема постоянных респираторных заболеваний).
Вентиляция может сохранить строительные материалы от плесени, предотвращая тем самым обветшание загородного коттеджа в будущем, а также защищает дом от пыли и загрязнений.
Кондиционирование коттеджей
При подборе климатической системы для частного дома в первую очередь учитывается архитектура здания, свойства электропроводки (ее способность выдерживать нагрузки). Можно использовать несколько типов систем кондиционирования. Одним из них является мультизональная система, которая подразумевает размещение внутренних блоков на расстоянии до 150 от внутренних. Каждый из внутренних блоков работает автономно на обогрев и охлаждение и создает микроклимат в здании.
Мультизональная климатическая система подразумевает использование до 30 внутренних блоков с одним или несколькими наружными блоками. Их размещают на крыше здания. Еще одним вариантом кондиционирования является система сплит, состоящей из внутреннего и наружного блоков, они объединены системой коммуникации, состоящих из трубопровода, дренажной системы и электропроводки.


Настенный сплит-кондиционер
Ну и самым простым вариантом кондиционирования здания является мобильный (переносной) кондиционер. Такие кондиционеры не требуют установки, их можно легко перемещать с одной комнаты в другую. Такие кондиционеры имеют трубу, которая выводит горячий воздух в окно.


Переносной кондиционер
Если в здании имеется несколько подвесных потолков, то используются сплит-система канального типа. При этом варианте оборудование в состоянии обслуживать несколько комнат. Часто устанавливают и мультисплит-систему с одним наружным блоком, который размещается на фасаде здания. С помощью большого количества внутренних блоков в системе можно создавать различные условия во всех комнатах здания. Цена установки такой системы напрямую зависит от длины коммуникаций и обычно не привышает 30 % от цены всего оборудования.
Проект вентиляции коттеджа
Проект вентиляции коттеджа подразумевает точные расчеты с тщательной проработкой особенностей проекта. Проектирование лучше делать в специализированных программах. Это 3-d проектирование, которое позволяет за короткое время сконструировать вентиляционные системы.


3d-проект вентиляции коттеджа
Окончательный проект выполняется с учетом всех нормативов. Во время проектирования выполняются такие типы работ:
Разработка коммерческого предложения;
Создание проектной документации по системам отопления;
Проведение экспертизы оборудования с рекомендацией по его использованию.
Проектирование системы вентиляции подразумевает расчет всех параметров воздухообмена, рассчитываются отдельно для каждого помещения.
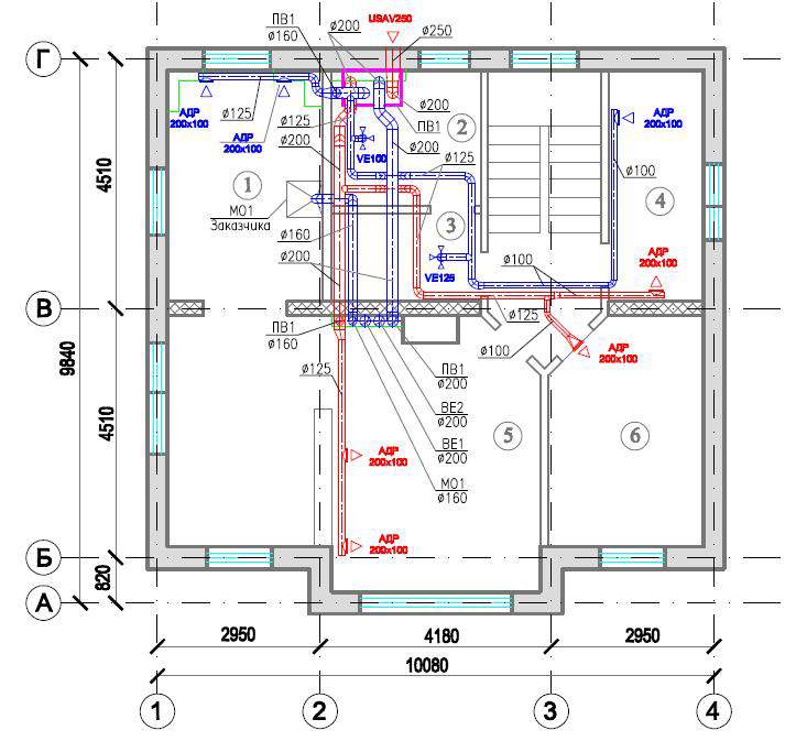
Схема вентиляции коттеджа
При расчете вентиляции учитывается площадь строения, количество жильцов, норма потребления воздуха. Учитывая нормы, мощность вентиляции должна быть не менее 30 м3 в час на одного человека. Температура воздуха, в идеале, зимой должна быть от 20 до 24 градусов, летом 22-24 градусов. Влажность воздуха зимой должна быть в пределах 30-54%, летом 30-60%.
Рассмотрим схему вентиляции на примере квартиры в 100 м2


Чертеж-схема вентиляции коттеджа
Если в доме проживает постоянно 2 человека, то в таком случае заселенность составляет 50 м2. Объем притока Lжил. 2 (по кратности) = 280 ×0,35 = 98 м3/ч, Lжил. 2 (по количеству жильцов) = 30 × 2 = 60 м3/ч. Объем вытяжки составляет Lудал.S = 140 м3/ч. Наименьший расход приточного воздуха принимают Lрасч.нар = 140 м3/ч. Расход воздуха вытяжного Lвыт. = 140 м3/ч.