Пиролизный котел

Выбор способа отопления дома будет зависеть от площади отапливаемого помещения, от имеющегося топлива, а также от того, утеплен ли дом. На сегодняшний день одними из самых современных и выгодных в эксплуатации отопительных систем являются пиролизные котлы. Они работают на твердом топливе, а время его сгорания, в отличие от обычных печей, в несколько раз дольше. Именно за счет этого котел может отапливать дом в течение всего дня и ночи.

Пиролизные устройства работают только за счет сухой древесины. Если влажность топлива чуть больше 10 процентов, КПД горения снижается, в результате чего образуется намного меньше тепла. Для таких котлов очень удобны в использовании пеллеты — специальное сухое топливо.

Название «пиролизный» такая система отопления получила за счет вырабатываемого в котле пиролизного газа. Он получается в результате медленного тления топлива, при этом угарный газ в данной системе полностью окисляется до углекислого.

Такой способ отопления обладает неоспоримыми достоинствами:

  1. Такой котел можно заправлять топливом раз в полдня, чтобы обеспечивать в доме комфортный температурный режим.
  2. Такая система позволяет нагревать воздух достаточно быстро.
  3. Пиролизные котлы легко чистить, так как в них образуется мало золы. Именно поэтому они считаются одними из самых экологически безопасных способов отопления.
  4. Теплопотери такого котла очень малы, так как дом нагревается за счет подачи теплого воздуха.
  5. Такое оборудование также является безопасным в плане отсутствия утечек или замерзания системы отопления.

Единственный минус пиролизного котла: высокая стоимость и необходимость энергоснабжения.

Пиролизный котел по типу буржуйки

Пиролизный котел

Для того, чтобы уменьшить затраты на покупку пиролизного котла, можно собрать его самостоятельно. Есть несколько вариантов его сборки. Самый простой — это котел, собранный по типу обычной буржуйки.

Для этого нужно взять большую металлическую бочку объемом 200 л, вырезать в ней отверстие для дверцы и соединить с дымоотводом. Но в итоге такой упрощенной конструкции будет быстро расходоваться топливо. Кроме того, толщина стенки бочки должна быть не меньше 5 мм, в идеале — 1 см. Но обычную бочку с такой толщиной найти практически невозможно.

Поэтому в качестве основы для пиролизного котла вполне подойдет бывший в употреблении твердотопливный котел. Для этого через стенки топки необходимо подвести трубу, к которой будет подсоединен электронасос, приток воздуха должен через поддувало должен ограничиваться.

Перед сборкой и установкой пиролизного котла необходимо знать следующие правила безопасности:

  • установка отопительного устройства должна происходить только в нежилом помещении;
  • устанавливать его необходимо на бетонную или кирпичную поверхность;
  • в комнате должна быть вентиляция для того, чтобы постоянно поступал воздух, необходимый для сгорания топлива.

Инструкция по изготовлению пиролизного котла

Наиболее оптимальным для сборки является пиролизный котел мощностью от 25кват. Он способен отапливать большие помещения площадью от 180 м2.

Для его изготовления необходимы следующие материалы:

  • металлические листы толщиной не менее 0,8 мм;
  • 15−20 штук шамотного (огнеупорного кирпича);
  • система датчиков температуры;
  • колосниковая решетка;
  • 3 трубы диаметром 5,7 см, 3,2 см и 16 см (для подвода холодной и горячей воды, а также для подающей магистрали контура котла);
  • 2 профтрубы (для патрубков аварийной линии и выхода);
  • дутьевой вентилятор;
  • датчик температуры;
  • чертеж и таблица размеров для сборки котла;
  • 2 дверцы для топки и зольника;
  • крепления из пережжённой проволоки для дверок;
  • шлифовальные круги -10 штук.

Необходимые инструменты:

  • аппарат для сварки электрический;
  • болгарка;
  • углошлифовальная машинка.

Процесс изготовления

  1. Схема сборки котлаИз стальных листов необходимо вырезать 4 стенки для котла. В передней стенке сделать отверстия для топки и расположенного под ним зольника.
  2. Вырезать отверстия для дымососа и под трубников. Соединить все металлические стенки (кроме задней) при помощи сварочного аппарата, а стыки между сторонами будущего котла необходимо отшлифовать.
  3. Далее собирается теплообменник, как показано на рисунке. Трубы свариваются при помощи сварочного аппарата. Перед сваркой на сами трубы необходимо «одеть» шлифовальные круги для удаления стыков и швов между ними.
  4. Затем необходимо вмонтировать теплообменник в будущий котел как на рисунке. Прежде чем, закрывать устройство задней стенкой, необходимо проверить его на наличие течей компрессором. Если таковых нет, заднюю часть котла сваривают.
  5. Далее необходимо установить колосниковую решетку, которая будет отделять место газификации и сжигания топлива. Нижний отдел, где будет сжигаться топливо, оснащают воздуховодом и обкладывают шамотным (огнеупорным) кирпичом со всех сторон, в том числе и снизу.
  6. Затем необходимо прикрепить дверцы в соответствующие отделения для подачи топлива и для зольника. Они должны плотно прилегать к стенкам котла.
  7. В конце готовый котел устанавливают на кирпичную поверхность и присоединяют к трубе, утепленную негорючим утеплителем (например, фольгированной минватой). Без этого на стенках трубы будет оседать деготь, который значительно укоротит срок службы котла. К устройству подключают водяной контур и дымовой насос.
  8. Для того чтобы котел работал автоматически, так же как и производственный, необходимо установить систему контроля температуры. Он нужен для того, чтобы регулировать работу дымососа, а также подачу воздуха.
  9. Установка котла на этом не заканчивается. Необходимо проверить его КПД. Если, включив котел, вы не обнаружили запаха угарного газа от выходящего дыма, значит его КПД достаточно высок и оборудование является безопасным для использования.

Таким образом, если у вас есть первоначальные навыки работы с болгаркой и шлифовальным аппаратом, если вы разбирайтесь в элементарных чертежах, вы без труда соберете пиролизный котел самостоятельно. А это не только уют и тепло в своем доме, но и очень выгодная экономия финансовых средств.

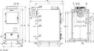
Таблица размеров пиролизного котла

  • Таблица размеровА-контроллер котлового контура
  • B -загрузочная дверца
  • С-дверца зольника
  • D -дымосос
  • E -муфта
  • F -патрубок аварийной линии
  • G — подающая магистраль котлового контура
  • H — подвод холодной воды
  • K — Подвод горячей воды
  • L -Обратная магистраль теплового контура
  • M -Патрубок опорожнения и расширительный бак

Таблица размеров (зависимость мощности будущего котла от размеров деталей).

Видео работы такого котла