По мнению большинства специалистов, установка двухконтурного котла не такая сложная, какой может показаться на первый взгляд, нужно лишь в точности придерживаться общепринятых правил и руководствоваться схемой. Прежде чем переходить к работе, стоит произвести ряд подготовительных действий, собрать все документы и закупить материалы.
Существуют также некоторые нюансы на каждом этапе установки, я подробно распишу их и дам полезные советы из личного опыта.
Обвязка оборудования вызывает у хозяев довольно много вопросов, на все из них есть ответы, крепление агрегата, подвод вытяжной трубы и подключение к сети будут затрагиваться в середине статьи. А в конце проведу аналогию и выделю основные отличия в процессе монтажа напольного котла и настенного образца.


В завершение будут советы экспертов по поводу первого запуска, ведь от правильного подхода к реализации зависит продолжительность срока службы приспособления и его продуктивность.
Нормы и правила
Если не придерживаться четких указаний от региональных властей, то в момент проверки специалисты газораспределительной компании попросту откажут хозяину в подключении агрегата к газопроводу. Чтобы избежать такой ситуации, нужно внимательно изучить требования и нормы, а после этого придерживаться их в процессе монтажа.
Установку всегда производят только после проектирования системы, к этому этапу необходимо отнестись максимально серьезно, чтобы в дальнейшем избежать больших проблем.
Нужно ли согласовывать установку
Ответ однозначный – да, а если сказать больше, то на получение разрешения и согласование с властями уходит львиная доля времени, по отношению ко всему процессу. Алгоритм действий лучше разобрать подробно, первое, что нужно сделать хозяину частного дома или квартиры, это посетить ближайший офис местной компании для получения технических условий.
Там он пишет заявление, которое будет рассматриваться на протяжении некоторого времени, зачастую на составление бланка уходит 1-2 недели, после чего человеку выдают документ на руки.
Как только бумаги поступят в распоряжение хозяина, стоит приступать к заказу разработки проекта, в который входит схема обвязки двухконтурного котла и другие важные моменты монтажа.
Подобные заказы можно сделать в ближайшем инженерно-проектировочном бюро, специалисты с надлежащим образованием проверяют газовые коммуникации и выполняют заказ, предварительно согласовав сроки. Когда проект будет составлен, его следует направить на рассмотрение в одну из служб:
- Горгаз.
- Райгаз.
- Облгаз.
- Мингаз.
При покупке двухконтурного котла следует обратить внимание на наличие паспорта, эти документы также потребуется предоставить.
Общие требования по проекту


Все важные моменты можно узнать при ознакомлении со СНиПом 42-01-2002, в котором содержится информация, касающаяся правил монтажа двухконтурного котла. Помещение, в котором будет проходить установка оборудования, хозяин выбирает на свое усмотрение, зачастую в квартире агрегат монтируют на кухне, но для такой комнаты разрешается применять устройства с мощностью, не превышающей 60 кВт.
Отдельную топочную предусматривают для агрегатов, у которых этот показатель достигает 150 кВт. Существуют общепринятые требования к помещению для монтажа двухконтурного котла, они выглядят так:
- Минимальные значения объема 7,5 куб. м, а высота потолков не ниже 2 м.
- Запрещено оборудовать приспособлениями, функционирующими на газу подвалы, балконы, коридоры и санузлы.
- Стены необходимо защитить от нагрева, для этого используют негорючие материалы.
- Для организации освещения существует алгоритм просчета: на 10 куб. м. потребуется 0,3 окна.
- Подключение к электросети предполагает применение кабеля с заземлением, также как и для вариантов схем с бойлером.
- К сечению дымохода предъявляются отдельные требования, оно должно соответствовать мощности оборудования.
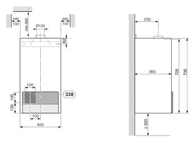
- Удаляют агрегат от стены на 0,7 м, перед ним также не должно быть преград на расстоянии 1,25 м.
- От выхода вертикального дымохода до аппарата следует отступить не более 3 метров.
Помимо этих правил, особое внимание уделяется вентиляции комнаты, она должна быть исправна и хорошо функционировать.
Документы
Для согласования проекта потребуется предоставить пакет собранных документов, в их число входят:
- Технический паспорт на устройство.
- Инструкция по проведению эксплуатации.
- Сертификат на соответствие санитарным и техническим требованиям.
- Выводы после прохождения экспертизы, направленной на осмотр агрегата.
Если после произведения всех необходимых действий хозяин получил письменный отказ, то сотрудники зачастую вносят правки, которые потребуется устранить для повторной проверки на соблюдение правил.
Установка и обвязка настенного двухконтурного котла
Приступать к этому этапу работ нужно после закупки всех составляющих, они могут несколько отличаться в каждом отдельном случае, это обусловлено выбором схемы подключения, есть обвязка двухконтурного котла с бойлером.
К приобретению мелочевки также стоит подойти серьезно, из-за нехватки фитинга процесс придется приостановить, что вызовет немало расстройств и увеличит время на монтаж. Если необходимые материалы были закуплены согласно списку, то проблем не возникнет, следует перепроверить наличие составляющих перед началом работ или вызовом мастеров.
Схема обвязки


Благодаря такому наглядному пособию получится достаточно быстро сориентироваться и правильно подобрать последовательность манипуляций. Я всегда пользуюсь одним документом для реализации задуманного, который считаю максимально точным и практичным, хочу поделиться им с вами.
При установке двухконтурного котла следует предусмотреть наличие таких составляющих как:
- Краны.
- Фильтры.
- Сгоны.
- Гофрированный шланг.
- Манометр.
- Терморегулятор.
- Дымоходную трубу.
- Предохранительный клапан.
Не будет лишним предварительно разложить инструмент на месте установки, а перед этим проверить его наличие. В отсутствии одного из ключей не стоит покупать целый набор, в решении проблемы поможет разводной ключ, он не подойдет только в тех местах, где пространство будет ограниченным, так как основная часть довольно большая.


Крепление двухконтурных котлов на стену
На этом этапе все начинается с выбора места, стоит выделить несущую стену, если в дальнейшем будет применяться коаксиальный дымоход.
Для прямых конструкций подойдет и межкомнатная перегородка, такие решения свойственны частному дому. Для закрепления настенного агрегата в комплекте идут специальные планки, высоту следует отрегулировать по соотношению к полу, она варьируется от 0,8 до 1 м.
Чтобы произвести монтаж, нужно просверлить отверстия в стене, для этого лучше избегать полых пространств перегородки, в противном случае устройство не будет надежно закреплено. Большой популярностью пользуются анкера, они намного безопаснее обычных саморезов с дюбелями.


Подключение навесного котла к системе отопления
При правильно произведенных подготовительных работах проблем на этой стадии не возникнет, но не стоит забывать, что контур оборудования отопления и ГВС обязательно промывают. Во время сборки на заводе изготовителе туда мог попасть различный мелкий мусор, игнорировать такие действия не стоит.
Прежде чем подключить входящие трубы, на них ставят краны, с выходными патрубками производятся такие же манипуляции, это решение поможет отсечь оборудование в момент демонтажа без потерь теплоносителя и жидкости из системы ГВС. После оснащения конструкции сгонами можно переходить к подключению отопительной магистрали, на этом этапе монтируют циркуляционный насос, если в нем есть необходимость.
Подключение трубы дымохода
При использовании коаксиальной конструкции, которую в 95% выбирают хозяева квартир и домов, следует учесть один момент, он касается создания уклона в 3-5 градусов. Это решение поможет избежать попадания образовавшегося конденсата в оборудование, все скопления будут выбрасываться на улицу.
Если мощность агрегата без водонагревателя довольно большая, то с выводом продуктов сгорания сможет справиться только вертикальный дымоход, в частных домах такие устройства создаются с наименьшим количеством поворотов, верхняя часть должна возвышаться над кровлей минимум на 0,5 м.


Подключение двухконтурного котла к сети
В большинстве ситуаций сложностей при произведении манипуляций такого плана не возникает, как и в случае с электробойлером, достаточно подключить вилку в розетку. Но о правилах безопасности и требованиях должен знать каждый хозяин.
Важным моментом можно назвать наличие заземления, автоматический выключатель также пользуется большой популярностью, но его расположение следует предварительно продумать. В момент возникновения аварийной ситуации на приспособление не должна попасть жидкость, в противном случае произойдет замыкание, а основную функцию устройство не выполнит.
К общепринятым нормам можно отнести следующее:
- Наличие провода с заземлением, если комплектация приспособления не предполагает наличие шнура, то элемент закупается отдельно.
- Запрещено использовать стальные трубы для реализации заземления ГВС.
- При прокладывании кабеля его оснащают гофрой.
При монтаже турбированных агрегатов с водонагревателем иностранных производителей неопытные мастера зачастую путают фазу с нулем, на этот момент стоит обратить внимание, и перепроверить правильность исполнения работ. Если допустить такую ошибку, то блок попросту не запустит систему, что вызовет недоумение специалистов и хозяина.
Установка напольного двухконтурного котла
Если провести сравнение с настенным оборудованием, то при подготовке фитингов и материалов различий будет очень мало, особенно когда используется одинаковая схема подключения.
Варианты исполнения, не крепящиеся на стену, могут быть энергонезависимыми, в этой ситуации подключение напольных котлов к сети не потребуется. Самотечные системы предполагают наличие расширительного бака с переливом, группу безопасности ГВС создают согласно схеме подключения двухконтурного котла.
Если потребуется, то в магистраль внедряется циркуляционный насос, а в большинстве настенных аппаратов он встроен в корпус.
Запуск
Проведена установка двухконтурного котла, после проверки его состояния наполняется система, спешить не нужно, если минимально открыть подачу жидкости, то скопления воздушных масс будет незначительным, что облегчит дальнейшую регулировку.
Перед пуском газового оборудования необходимо взглянуть на давление в системе, для каждой модели предусмотрены индивидуальные показатели. Специалисты советуют спустить некоторую часть воды с насоса, для этого потребуется снять лицевую панель, если уверенности в собственных силах нет, лучше обратиться к профессионалам. После чего можно производить розжиг и наблюдать за производительностью, задавая специальные программы для пользователя.