

Жизнь современного человека, который привык к комфортным условиям, трудно себе представить без горячей воды. К сожалению, работа центрального водоснабжения оставляет желать лучшего. Горячая вода подается с постоянными перебоями, а некоторые дома и вовсе не подключены к центральному отоплению. В таких случаях неплохим решением становится подключение бойлера косвенного нагрева.
Что представляет из себя бойлер косвенного нагрева?
В России бойлером обычно называют бак или нагреватель, который снабжает дом/квартиру горячей водой. Существует 2 вида бойлеров:
- прямого нагрева;
- косвенного нагрева.


Основное отличие такого вида нагревателя от других заключается в том, что бойлер нагревает воду не от электричества или газа, как в случае с прямым нагревом, который подает воду благодаря тэну или газовой грелки, а снабжает квартиру горячей водой от центральной отопительной системы.
Внешний вид такого нагревателя напоминает бочку, но в последнее время очень популярными стали модели прямоугольной или кубической формы. Последние выполнены в едином стиле с котлом и обычно устанавливаются прямо под ним, экономя место в котельной.
Отдельно отметим бойлеры косвенного нагрева от европейского бренда STOUT. Эти бойлеры универсальны, продаются с емкостями от 75 до 200 литров — подойдут для квартиры или дома практически любой площади. Каждый этап технологического процесса производства бойлера STOUT отвечает европейским нормам ISO, на всех этапах изделие проверяется на герметичность.
Бренд внимательно следит за продуктом, проводит аудит каждого 50-го бойлера. Проверяется абсолютно все, начиная от качества упаковки, заканчивая тестированием режимов работы. Благодаря этому бойлер косвенного нагрева STOUT надежен, прост в эксплуатации и будет служить долгие годы.
За подробностями переходите на stout.ru.
Как работает бойлер косвенного нагрева?
Внутренняя часть бойлера обычно стальная или пластиковая, а сама емкость для нагрева воды изготовлена из теплоизолирующего материла. Внутри бака находится теплообменник из латуни или стали, по которому проходит теплоноситель из котла отопления. Обычно его изготавливают в форме змеевика, чтобы обеспечить максимально быстрый и эффективный нагрев бака. Для защиты от коррозии используют магниевый анод, чтобы обезопасить бак от повышения давления, внутри бойлера устанавливают термостат и предохранительный клапан. Внешний корпус бака обычно выполняется в дизайнерском стиле производителя. Сегодня на рынке можно встретить и другие модели бойлеров с косвенным нагревом — водонагреватели «бак в баке» или бойлеры с несколькими теплообменниками. Но встретить их в продаже можно они крайне редко.
К системе водоснабжения бойлер косвенного нагрева подключается через ввод для холодной и вывод для горячей воды.
Холодная вода наполняет емкость для нагрева, а на выходе горячая вода попадает к потребителю. Каждый бойлер косвенного нагрева связан с трубопроводом, через который теплоноситель попадает в котел для очередного нагрева. На таком трубопроводе обязательно устанавливается насосно-смесительная система, которая отвечает за циркуляцию воды.
Плюсы и минусы схемы работы
Основные преимущества работы бойлера косвенного нагрева:
- работа такого водонагревателя не перегружает электропроводку в отопительный сезон, так как бойлер зависит от центрального отопления и не расходует электричество;
- при правильном проектировании бойлер имеет очень высокие показатели в области производительности и оптимальное соотношение затрат;
- внутренняя поверхность нагревателя и теплоноситель не взаимодействует с проточной водой, что обеспечивает безопасную и долгую службу агрегата;
- за счет рециркуляции горячая вода идет сразу после открытия крана;
- бойлер косвенного нагрева всегда можно переключить на альтернативный источник тепла либо использовать несколько.
К сожалению, каждая схема работы помимо положительных, имеет и негативные стороны:
- чтобы переоборудовать систему, потребуются дополнительные затраты;
- стоимость бойлера с косвенным нагревом гораздо выше газовых или электронагревателей;
- первоначальный нагрев воды (объемом более 100 литров) длится от 1 до 2 часов, это может негативно сказаться на качестве отопительной системы помещения;
- для бойлера объемом 100 литров и более необходимо отдельное помещение по причине внушительного размера прибора.
На что обращать внимание при выборе бойлера косвенного нагрева?
О факторах, влияющих на потребление энергии бойлером, можно прочитать здесь: https://teplo.guru/vodonagrevateli/skolko-energii-potreblyaet.html


Считается, что на одного проживающего необходимо 80−100 литров горячей воды, конечно, этот расчет условный, все зависит от предпочтений и привычек проживающих. К примеру, кто-то любит принимать душ два раза в день, другой обходится принятием ванны раз в неделю. Чем больше объем бойлера, тем выше его стоимость.
Следующее, на что нужно обратить внимание при покупке — это материал внутренней части водонагревателя.
Отдавать предпочтение нужно бойлерам со змеевиком из латуни. Нагревать воду он будет более эффективно, нежели стальной, кроме этого чистить латунный змеевик гораздо проще.
Емкость для нагрева воды должна быть защищена от коррозии. В более дешевых моделях баки покрывают слоем эмали или стеклокерамики. Дорогостоящие приборы защищены от коррозии нержавеющей сталью.
Кроме этого, не стоит забывать о теплоизоляции агрегата, качественные бойлеры имеют изолированы минеральной ватой или пенополиуретаном. Моделей с поролоновой изоляцией лучше избегать.
Пошаговая инструкция по сливу воды и чистке бойлера находится здесь: https://teplo.guru/vodonagrevateli/slivaem-vodu-iz-boilera.html
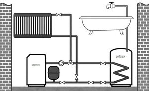
Схема подключения бойлера косвенного нагрева


Бойлер можно подключить по гидравлической и электрической системе. Схема подключения на двух насосах или гидравлическая считается наиболее эффективной.
Один насос используется для обогрева жилого помещения, второй — для косвенного нагрева самого бойлера. Электрическая схема подключения предполагает систему переключения режимов — реле.
В двухнасосной схеме подключения бойлера потоки теплоносителя передвигаются в различных направлениях за счет работы циркуляционных насосов. Линия горячей воды (бойлера и отопительного котла) параллельно подключены к насосам, за счет термодатчика нагревателя регулируется режим работы насосов. В цепи после каждого насоса устанавливается обратный клапан, чтобы насосы работали автономно, независимо друг от друга. В представленной схеме отопительный контур отключен, но это практически не влияет на скорость нагрева воды в батареях.
Изготовить бойлер косвенного нагрева самостоятельно поможет данная статья: https://teplo.guru/vodonagrevateli/samodelnyi-boiler-kosvennogo-nagreva.html
Типовые ошибки при подключении
Первая ошибка, с которой чаще всего сталкиваются — это неправильное место установки бойлера косвенного нагрева. Устанавливать его нужно максимально близко к отопительному котлу или к выходу центрального водоснабжения.
Следующая ошибка — неправильное подключение подачи холодной воды. Последовательное подключение входа и выхода теплоносителя обеспечивает эффективную работу водонагревателя. Для достижения оптимальных результатов нагрева и отопления теплоноситель должен входить в бойлер сверху и выходить снизу.
Неправильное подключение циркуляционного насоса влечет за собой множество отрицательных последствий:
- ось двигателя должна располагаться горизонтально, это поможет избежать раннего износа подшипников;
- насос должен быть защищен от попадания мусора, нужно постоянно следить за состоянием сетчатых фильтров.
Современный рынок отопительных систем предлагает широкий выбор бойлеров и других водонагревателей, поэтому каждый сможет найти для себя модель с оптимальным соотношением цена-качество. Для консультации всегда можно обратиться в сервисный центр, где Вам обязательно окажут помощь в проектировании, монтаже и обслуживании отопительных приборов.